中古戸建

「枚方市長尾家具町4丁目中古戸建住宅」大容量の目隠しパントリ―付き♪

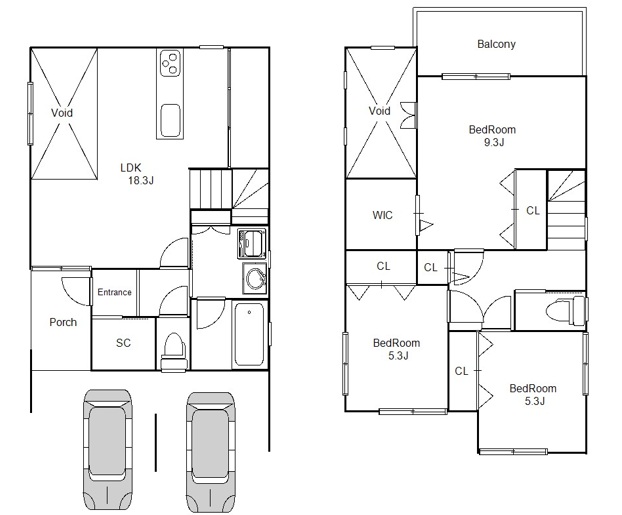
 3LDK『3,280万円』!!(間取)
価格 3280万円
延べ床面積 98.41 m²
土地面積 104.94m²
築年数 2016/03
所在地 大阪府枚方市長尾家具町
交通 JR片町線長尾駅 徒歩15分

物件写真

2台駐車可!前面道路が6mあるので駐車も楽々♪(外観)  3LDK『3,280万円』!!(間取) 白で統一された清潔感のある玄関(玄関) 家族全員分の靴はもちろん、アウトドア用品やベビーカなどたっぷり収納していただけるシューズインクローク♪ フラットなのでお手入れしやすいIHクッキングヒーター。火を使わないのでお子様にも安心!キッチン横に調味料などが置ける収納棚があり大変便利です!(キッチン) キッチン背面には大容量のパントリー!!(キッチン) 吹き抜けになっているので、とても解放感のあるリビングです♪(居間) TVモニター付インターホンでセキュリティー面にも配慮 テーブルや椅子なども置ける広々とした寝室。第二のリビングにもなりそうです♪(寝室) オシャレ好きの方におすすめしたい大容量ウォークインクローゼット。季節物の衣類もスッキリ収納 アクセントクロスがオシャレなトイレ♪ 洗面所にも収納棚あり!タオルや洗剤のストックなどたっぷり収納していただけます! ゆったりした広さのシステムバス。足を伸ばして毎日の疲れを癒せます。(風呂) 雨の日や花粉の多い季節のお洗濯にも大活躍な浴室乾燥機付! 雨の日にはありがたい屋根付きの玄関インナーポーチ!!(外観)

詳細情報

価格 3280万円
管理費
面積 98.41m²
建物階数 地上2階  地下0階 築年数 2016/03
敷地全体面積 延べ床面積 98.41m²
駐車場 0円 空有 2台駐車可(※車種による) 取引態様 専属
引渡/入居時期 相談
地目 宅地 用途地域 第二種中高層住居専用
都市計画 市街化区域 地勢
土地面積 104.94m² 土地面積計測方式
建ぺい率 60% 容積率 200%
土地権利 所有権 接道状況 一方
接道方向1 北東 接道間口1 7.3m
接道種別1 公道 接道幅員1 6m
国土法届出 不要
設備・条件 IHコンロ 三口コンロ システムキッチン カウンターキッチン 食器洗い乾燥機 給湯 追い焚き 洗髪洗面化粧台 独立洗面台 バス専用 シャワー 浴室乾燥機 浴室TV トイレ専用 バス・トイレ別 温水洗浄便座 W.INクローゼット 室内洗濯機置き場 洗濯機置き場有 TVドアホン 都市ガス 公営水道 排水下水 駐車場有

当社コメント

☆○o。 オススメポイント 。o○☆
■2台駐車可!!
■全居室収納あり!収納充実プラン!
■第2のリビングにもなりそうな9.3帖の広々とした寝室♪
■急な来客時も安心な大容量の目隠しパントリ―♪

☆周辺環境☆
■枚方市立長尾小学校・・・約350m
■枚方市立長尾中学校・・・約550m
■セブンイレブン枚方長尾荒阪2丁目店・・・約407m
■業務スーパーソフィアモール松井山手店・・・約1772m

【ご見学希望常時受付中】
随時ご見学OK!お気軽にお問い合わせください!
物件に関するご質問、住宅ローンに関する事など「担当:もり」までお気軽にお問合せ下さい♪

 

※物件掲載内容と現況に相違がある場合は現況を優先と致します。

関連物件

※物件掲載内容と現況に相違がある場合は現況を優先と致します。

この物件を問い合わせる

お名前

(必須)

メールアドレス

(必須)

TEL

(必須)

物件指定
お問い合わせ内容

(任意)

内見希望詳細確認比較物件の紹介希望その他
ご住所

(任意)

ご希望の連絡方法

(任意)

電話メール
詳しいご要望

(任意)