中古戸建

「四条畷市岡山5丁目中古戸建住宅」\リフォーム済です♪/

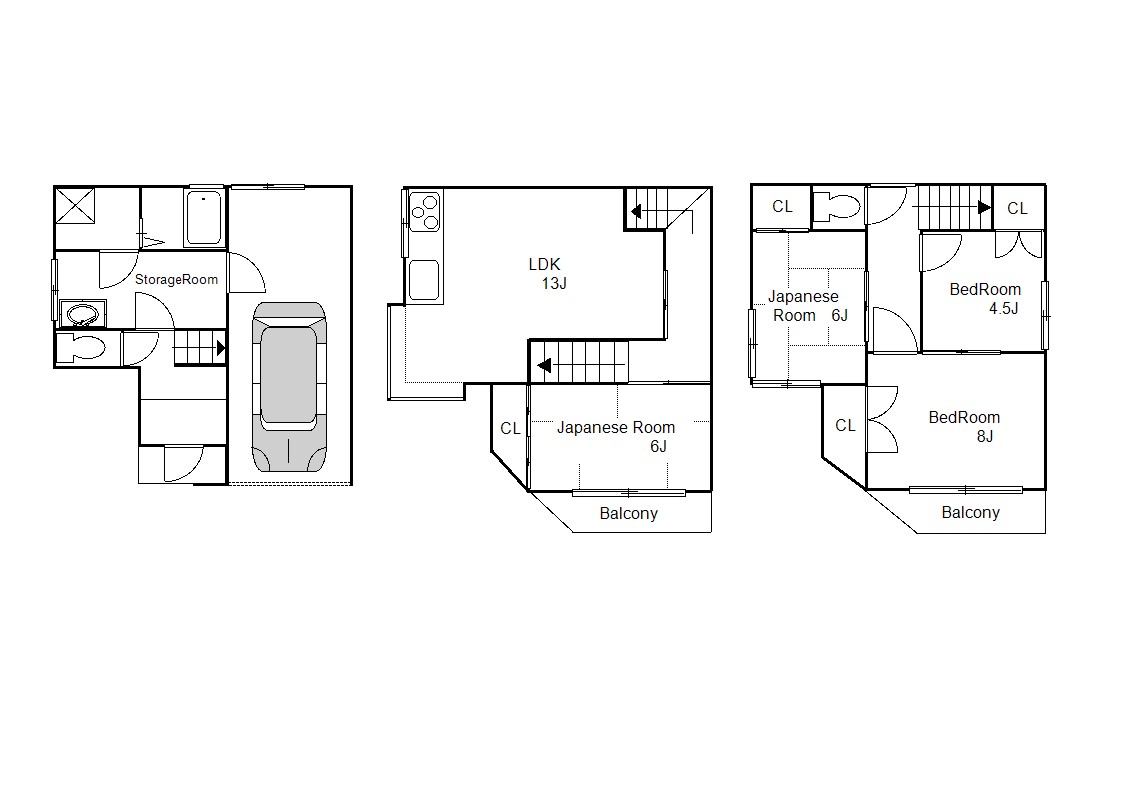
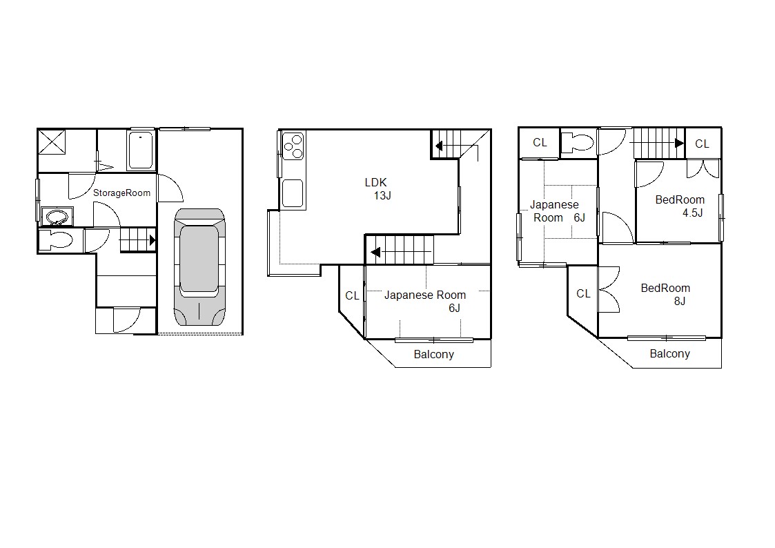
和室あり!5LDKインナーガレージ付きです♪(間取)
価格 1780万円
延べ床面積 119.06 m²
土地面積 55.89m²
築年数 1988/12
所在地 大阪府四條畷市岡山5丁目
交通 JR片町線忍ヶ丘駅 徒歩12分

物件写真

角地!日当り・風通良好♪(外観) 和室あり!5LDKインナーガレージ付きです♪(間取) 徒歩10分圏内に買い物施設が充実!!(外観) 閑静な住宅街です♪(外観) (外観)

詳細情報

価格 1780万円
管理費
面積 119.06m²
建物階数 地上3階  地下0階 築年数 1988/12
敷地全体面積 延べ床面積 119.06m²
駐車場 0円 空有 ※1台可(車種による) 取引態様 仲介
引渡/入居時期 相談
現況 空家
地目 宅地 用途地域 第一種住居
都市計画 市街化区域 地勢
土地面積 55.89m² 土地面積計測方式 公簿
建ぺい率 60% 容積率 200%
土地権利 所有権 接道状況 二方(除角地)
接道方向1 接道間口1 10.5m
接道種別1 公道 接道幅員1 5.2m
接道方向2 西 接道間口2 3.5m
接道種別2 公道 接道幅員2 4.5m
国土法届出 不要
設備・条件 ガスコンロ 三口コンロ システムキッチン 給湯 洗髪洗面化粧台 独立洗面台 バス専用 シャワー トイレ専用 バス・トイレ別 室内洗濯機置き場 都市ガス 公営水道 排水下水 駐車場有 駐輪場 フローリング ※準防火地域 ※構造【木・鉄筋コンクリート造】

当社コメント

\\2024年8月リフォーム済!!お気軽にお問い合わせ下さい♪//

○o。 オススメポイント 。o○☆
■徒歩10分圏内に買い物施設が充実
■角地!日当り・風通良好♪
■閑静な住宅街
■インナーガレージ
■和室あり!収納豊富♪

◎◎リフォーム内容◎◎
・全室クロス貼替・フロアタイル貼り・キッチン・システムバス・トイレ新調・洗面化粧台新調・畳表貼替

【ご見学希望常時受付中】
随時ご見学OK!お気軽にお問い合わせください!
物件に関するご質問、住宅ローンに関する事など「担当:もり」までお気軽にお問合せ下さい♪

※図面と現況がが相違がある場合は現況を優先とします。

関連物件

  • 「四条畷市大字清瀧中古戸建住宅」憧れの小下がりリビング♪「四条畷市大字清瀧中古戸建住宅」憧れの小下がりリビング♪
    3480万円 3LDK
    四條畷市 大字清瀧

    JR片町線忍ヶ丘駅
  • 「四条畷市岡山四丁目中古戸建住宅」\内覧可能♪リフォーム済/「四条畷市岡山四丁目中古戸建住宅」\内覧可能♪リフォーム済/
    1780万円 2LDK
    四條畷市 岡山四丁目

    JR片町線忍ヶ丘駅
※物件掲載内容と現況に相違がある場合は現況を優先と致します。

この物件を問い合わせる

お名前

(必須)

メールアドレス

(必須)

TEL

(必須)

物件指定
お問い合わせ内容

(任意)

内見希望詳細確認比較物件の紹介希望その他
ご住所

(任意)

ご希望の連絡方法

(任意)

電話メール
詳しいご要望

(任意)