中古戸建

「東成区深江北1丁目中古戸建」近隣に買い物施設が多数あり便利です♪

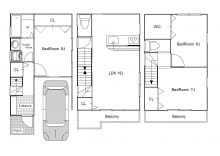
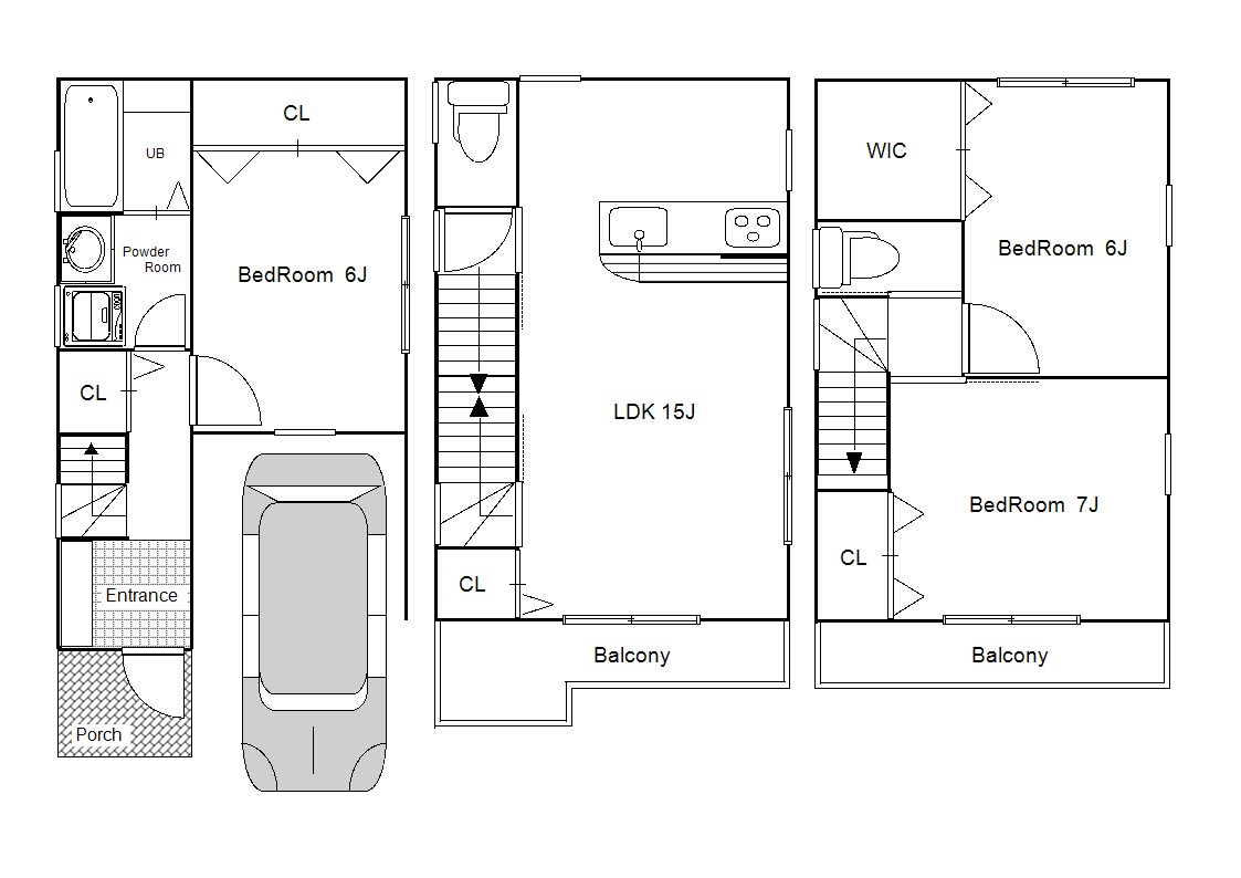
全居室収納あり♪綺麗な状態です!!(間取)
価格 3880万円
延べ床面積 85.85 m²
土地面積 52.44m²
築年数 2015/06
所在地 大阪府大阪市東成区深江北1丁目
交通 大阪市営中央線深江橋駅 徒歩8分
大阪市営千日前線新深江駅 徒歩11分

物件写真

3LDK中古戸建『3,880万円』!!周辺に買い物施設が多数あり好立地な物件です!(外観) 全居室収納あり♪綺麗な状態です!!(間取) 大きな鏡付きのシューボックス♪玄関にはクローゼットもあり、散らかりがちな玄関もスッキリ綺麗に保てます♪(玄関) 赤色がアクセントの元気が出そうな玄関扉!(玄関) 使い勝手の良い鏡裏収納付3面鏡型の独立洗面化粧台。 身支度の際に重宝する三面鏡タイプの洗面台です。洗面ボウル下、三面鏡裏に収納スペースがあります。 ゆったりした広さのシステムバス。足を伸ばして毎日の疲れを癒せます。(風呂) 浴室にテレビ!半身浴が楽しみになりますよね!! 雨の日や花粉の多い季節のお洗濯にも大活躍な浴室乾燥機付! 暗くなりがちな階段にも、窓から明るい日差しとさわやかな風が入ります。 リビングが見渡せる対面キッチン。家事をしながらご家族と一日の出来事を話したり。コミュニケーションが取りやすく、家族の存在を近くに感じます。(キッチン) キッチン横にも窓があり、明るい日が差し込みます♪(キッチン) リビングイン階段でご家族がコミュニケーションの取りやすいプラン(居間) 家族団らんの時間も増えそうな、日当たり良好&くつろぎのLDK(居間) 2・3階の2ヶ所にあるので、朝の忙しい時間の順番待ちもなく、深夜の利用にも大変便利です。 TVモニター付インターホンでセキュリティー面にも配慮 2階と3階にバルコニーあり! 追い焚き機能付き浴室。いつでも温かいお風呂に入浴でき、一日の疲れも取れますね。 寝室や子供部屋など多彩いにお使い頂けます!(寝室) 寝室にはウォークインクローゼットご用意しております♪広い寝室がより広く使用できる工夫があります♪ 白を基調とした明るい雰囲気の洋室です。(寝室) (寝室) どんな家具も合わせやすいデザイン!シンプルなつくりだからこそどんな色味・どんな素材の家具もしっくりマッチします♪(寝室) ご家族の思い出も大切にしまっておける、充実した収納が魅力です♪(寝室) 清潔感のあるトイレ♪窓付きです 布団も干しやすいバルコニーです! すぐ近くには買い物施設もあり便利です♪

詳細情報

価格 3880万円
管理費
面積 85.85m²
建物階数 地上3階  地下0階 築年数 2015/06
駐車場 0円 空有  取引態様 専属
引渡/入居時期 即時
現況 空家
地目 宅地 用途地域 工業
都市計画 市街化区域 地勢 平坦
土地面積 52.44m² 土地面積計測方式 公簿
セットバック セットバック量
建ぺい率 60% 容積率 200%
土地権利 所有権 接道状況 一方
接道方向1 接道間口1 5.3m
接道種別1 公道 接道幅員1 8.0m
国土法届出 不要
設備・条件 ガスコンロ 三口コンロ カウンターキッチン 給湯 追い焚き 洗髪洗面化粧台 独立洗面台 バス専用 シャワー トイレ専用 温水洗浄便座 室内洗濯機置き場 TVドアホン 都市ガス 公営水道 排水下水 駐車場有

当社コメント

『大阪メトロ中央線「深江橋」駅まで徒歩8分!好立地な物件です』

☆○o。 オススメポイント 。o○☆

■徒歩圏内に買い物施設多数あり!
■小学校まで徒歩8分!
■全居室収納あり!

☆☆周辺環境☆☆
■大阪メトロ中央線「深江橋」駅・・・徒歩約8分
■大阪市立宝栄小学校・・・徒歩約8分
■大阪市立東陽中学校・・・徒歩約9分
■ウエルシア東成深江南店・・・徒歩約3分
■デイリーカナートイズミヤ深江橋店・・・徒歩約8分

【ご見学希望常時受付中】
随時ご見学OK!お気軽にお問い合わせください!
物件に関するご質問、住宅ローンに関する事
など「担当:もり」までお気軽にお問合せ下さい♪

関連物件

※物件掲載内容と現況に相違がある場合は現況を優先と致します。

この物件を問い合わせる

お名前

(必須)

メールアドレス

(必須)

TEL

(必須)

物件指定
お問い合わせ内容

(任意)

内見希望詳細確認比較物件の紹介希望その他
ご住所

(任意)

ご希望の連絡方法

(任意)

電話メール
詳しいご要望

(任意)