マンション

「COLORS」203号室☆令和7年10月完成賃貸マンション♪☆

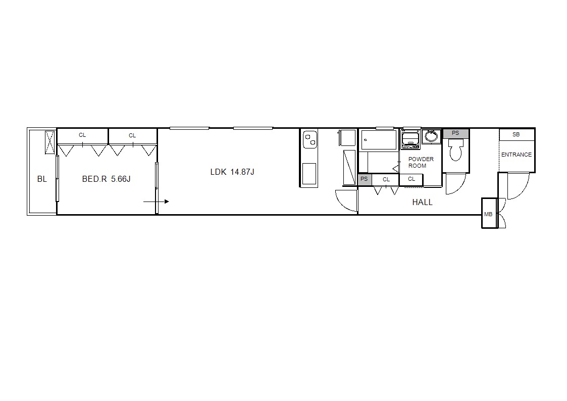
1LDK!専有面積54.57m2(間取)
賃料 8.3万円
管理費 5000円
敷金/礼金 0/2ヶ月
専有面積 54.57 m²
築年数 2025/10
所在地 大阪府四條畷市楠公2丁目
交通 JR片町線四条畷駅 徒歩8分

物件写真

令和7年10月完成予定です!!(外観) 1LDK!専有面積54.57m2(間取) 白で統一された明るい雰囲気の玄関です♪(玄関) たっぷり収納のシューズボックス♪(玄関) シンプルで清潔感のあるトイレ! 毎日使うものだから清潔な空間を保ちたい水回り!洗面所にはそんな願いを解消させてくれる収納アイデアが満載です。 ゆとりの洗面スペースで、朝の身支度もスムーズに! 木目調がオシャレなお風呂♪足を伸ばして毎日の疲れを癒せます。 (風呂) 洗面所に収納棚あり!!タオルや洗剤のストックなどたっぷり収納していただけます♪ 収納豊富プラン♪ちょっとしたスペースにタップリ収納でお部屋スッキリ♪ 収納棚を置いても十分にスペースがあります!!(キッチン) 収納力ばっちり♪使い勝手の良いキッチンです♪毎日のお料理も楽しくなります♪(キッチン) シンプルなLDKなので、お部屋のコーディネートがお楽しみいただけます!!(キッチン) 白を基調とした明るい雰囲気のLDK!!光差しこむ開放的なリビング空間です(居間) 凹凸のない四角い部屋なので使い勝手にも優れています!(居間) こちらのお部屋はバルコニーに面しており、日当たり、通風ともに良好です!(寝室) アクセントクロスがおしゃれな洋室♪(寝室) 収納がしっかり確保されているので、広々ゆったり使えます。 エアコン付き♪ TVモニター付インターホンでセキュリティー面にも配慮 オートロックでセキュリティー面にも配慮!!

詳細情報

価格 8.3万円
管理費 5000円
面積 54.57m²
建物階数 地上3階  地下0階 築年数 2025/10
築年数 2025/10 修繕積立金
駐車場 無  取引態様 専任
引渡/入居時期 期日指定 2025/10 下旬
現況 未完成
土地権利 接道状況 一方
国土法届出 不要
設備・条件 ペット不可 ガスコンロ 三口コンロ システムキッチン カウンターキッチン 給湯 追い焚き 洗髪洗面化粧台 独立洗面台 バス専用 シャワー 浴室乾燥機 トイレ専用 バス・トイレ別 温水洗浄便座 エアコン 室内洗濯機置き場 インターネット利用料無料 オートロック TVドアホン 都市ガス 公営水道 排水下水 駐輪場 バルコニー フローリング

当社コメント

\\令和7年10月完成予定!!徒歩1分以内にコンビニがあり大変便利です♪//

【JR片町線『四條畷』駅まで徒歩8分!!】

☆○o。 オススメポイント 。o○☆
■令和7年10月完成予定の新築♪
■全室角部屋!!
■収納豊富♪
■人気のカウンターキッチン!!

☆周辺環境☆
■ローソン四條畷南野一丁目店・・・徒歩約1分以内
■ラッキー四條畷店・・・徒歩約4分
■ドラッグアカカベサンリッチ店・・・徒歩約4分

※1年以内での解約は短期解約違約金として賃料総額の2ヶ月分が、1年を超え2年以内での解約は賃料総額の1ヶ月分がかかります。

【ご見学希望常時受付中】
随時ご見学OK!お気軽にお問い合わせください!
物件に関するご質問、住宅ローンに関する事など、
「担当:もり」までお気軽にお問合せ下さい♪

関連物件

  • new
    「COLORS」303号室☆令和7年10月完成賃貸マンション♪☆「COLORS」303号室☆令和7年10月完成賃貸マンション♪☆
    8.3万円 1LDK
    四條畷市 楠公2丁目

    JR片町線四条畷駅
  • new
    「COLORS」302号室☆令和7年10月完成賃貸マンション♪☆「COLORS」302号室☆令和7年10月完成賃貸マンション♪☆
    8.3万円 1LDK
    四條畷市 楠公2丁目

    JR片町線四条畷駅
  • new
    「COLORS」202号室☆令和7年10月完成賃貸マンション♪☆「COLORS」202号室☆令和7年10月完成賃貸マンション♪☆
    8.3万円 1LDK
    四條畷市 楠公2丁目

    JR片町線四条畷駅
  • up
    「COLORS」301号室☆令和7年10月完成賃貸マンション♪☆「COLORS」301号室☆令和7年10月完成賃貸マンション♪☆
    9万円 1LDK
    四條畷市 楠公2丁目

    JR片町線四条畷駅
  • new
    「COLORS」201号室☆令和7年10月完成賃貸マンション♪☆「COLORS」201号室☆令和7年10月完成賃貸マンション♪☆
    9万円 1LDK
    四條畷市 楠公2丁目

    JR片町線四条畷駅
※物件掲載内容と現況に相違がある場合は現況を優先と致します。

この物件を問い合わせる

お名前

(必須)

メールアドレス

(必須)

TEL

(必須)

物件指定
お問い合わせ内容

(任意)

内見希望詳細確認比較物件の紹介希望その他
ご住所

(任意)

ご希望の連絡方法

(任意)

電話メール
詳しいご要望

(任意)